Descrizione della proprietà
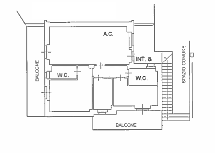
In prossimità del centro, in contesto tranquillo e riservato, a 150 mt da P.zza Togliatti e a soli 500 mt dalla stazione ferroviaria, con ottimi collegamenti da e per la capitale, in zona ben servita da attività commerciali, scuole, supermercati uffici postali, ristorazione, farmacie, etc., PROPONIAMO IN VENDITA appartamento di nuova costruzione in complesso immobiliare stile villino. L’immobile, che gode di un favoloso affaccio sulla campagna limitrofa, è posto al piano primo con entrata indipendente e si compone di un ampio soggiorno con angolo di cottura, disimpegno, camera matrimoniale con servizio interno, 2 camere, servizio e due balconi a livello. Completa la proprietà un box di oltre 45 mq sito al piano seminterrato. Certificato in classe energetica “A3” l’appartamento fa parte di un complesso ispirato ad un progetto moderno ed innovativo nella concezione dei volumi, nella definizione degli spazi e nella dotazione impiantistica, seguendo i più elevati standard in materia di efficienza energetica e comfort abitativo,inoltre lo stesso gode di un ottima esposizione verso la campagna circostante ed è dotato di impianto caldo/freddo radiante a pavimento tramite pompa di calore, impianto di accumulo acqua sanitaria, deumidificazione interna controllata, portoncino blindato, videocitofono touch a colori, infissi e porte in legno, tapparelle elettriche e fotovoltaico. € 325.000 trattabili. POSSIBILITÀ DI MUTUO FINO AL 90% DEL VALORE DELL’IMMOBILE CON PRIMARIO ISTITUTO DI CREDITO. Pronta Consegna. Visite sul posto per appuntamento. Info dirette: Paolo 335.53.48.532
Città: Santa Maria delle Mole
Paese: Italia
ID: 44075
Prezzo: € 325.000 trattabili
Dimensioni della proprietà: 70 m2
Locali: 3
Bagni: 2
Classe Energetica: A3
Posto Auto/Box: Box auto
Cucina: Angolo cottura
Piano: 1
Soggiorno: 1
Piano Posto Auto/Box : seminterrato
Balconi
Porta blindata
Riscaldamento Autonomo
Videocitofono
Impianto Tv centralizzato
Box auto
Climatizzazione caldo/freddo
Corte esterna
Pannello fotovoltaico
Pannello solare termico
Pompa di calore
Nuova Costruzione
Cucina induzione
Piazzale comune
Riscaldamento radiante a pavimento
Senza ascensore
Lati liberi 2
Contesto signorile
Totale piani edificio 2



















































